Umbau Betriebsgebäude K.

Das Objekt

Ein mittelständisches Unternehmen aus Oberösterreich wollte bei seiner Wiener Niederlassung aus den 1970-er Jahren, bestehend aus Lager- und Verkaufshalle mit angebautem Bürotrakt anfangs nur die Fassade des Letztgenannten erneuern. Dass der gesamte, hauptsächlich aus Stahlbeton-Fertigteilen errichtete Gebäudekomplex, aber nicht nur den bauphysikalischen Anforderungen, sondern auch den betrieblichen und repräsentativen, sowie jenen der Arbeitsplätze nicht mehr zeitgemäß entsprach, wurde bald maßgeblich für einen Entwurf eines gesamten Umbaus.

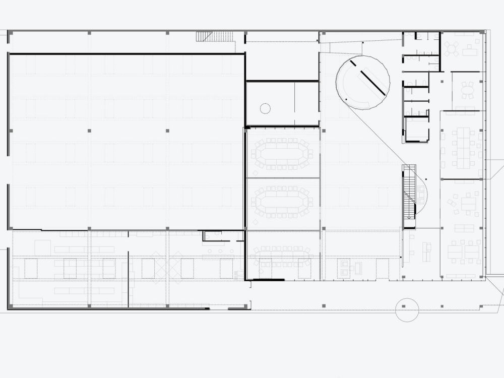
Lager- und Verkaufsflächen konnten reduziert, Büros modernisiert und Schulungsräume mit den erforderlichen Nebenräumen (ein)gebaut werden, um die Expansion des Unternehmens nach Osteuropa zu fördern.

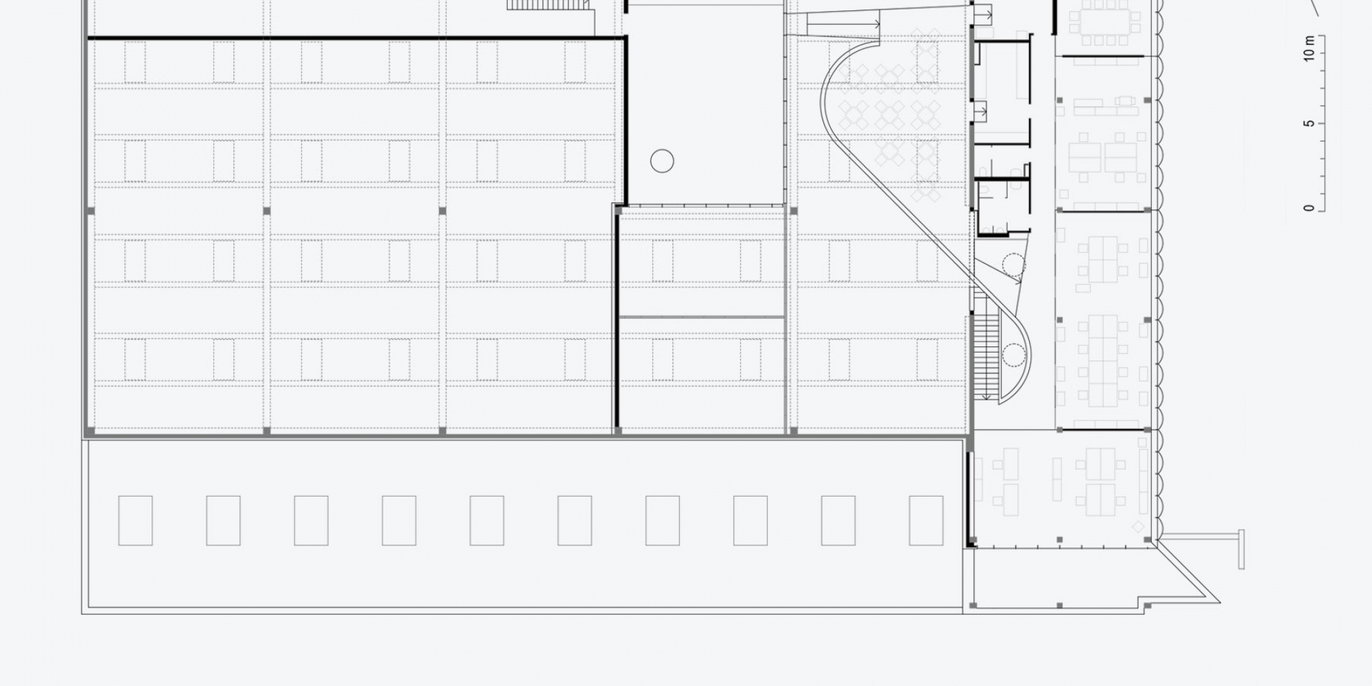
Der Umbau wurde innerhalb des vorhandenen Gebäudevolumens konzipiert; nur ein neues Vordach weist darüber hinaus zur Straßenseite auf den Zugang zum Verkaufsraum und zur zentralen Empfangshalle hin. Diese erschließt die Schulungsräume und den zweigeschoßigen Bürotrakt. Dessen Cafeteria bildet die Galerie der Empfangshalle (Pausenhalle) und ist über eine Brücke mit dem neu im Obergeschoß eingeschnittenen Atrium verbunden, das neben seitlicher Belichtung in dieser Gegend auch einen attraktiven Freiraum für die Mitarbeiter bieten will. Konstruktive Elemente des Bestandes, technische Ausbauelemente blieben durch den Umbau erkenntlich und verweisen auf den Transformationsprozess eines Betriebsgebäudes.

Kooperation mit Arch. DI Klaus Hagenauer

ObjektartArbeit OrtWien Dimensionen2000m2 StatusFertiggestellt FotografieNorbert Artner, Herbert Moser (Bestand)
2

3 Zugang

Zugang

4 Eingangshalle

Eingangshalle

5 Garderobe, Brücke zum Atrium

Garderobe, Brücke zum Atrium

6 Eingangshalle Galerie

Eingangshalle Galerie

7 Durchgang Galerie Eingangshalle

Durchgang Galerie Eingangshalle

8 Obergeschoß

Obergeschoß

9 Atrium

Atrium

10 Stiege Austritt Büro OG

Stiege Austritt Büro OG

11 Erschließung Büros

Erschließung Büros

12 Stiege Antritt

Stiege Antritt

13 Grundriss OG

Grundriss OG

14 Grundriss EG

Grundriss EG

Vorheriges
Projekt
Nächstes
Projekt

Interessiert?

Wir hören gerne von Ihrer Projektidee oder erzählen bei einem persönlichen Gespräch mehr über uns und unsere Arbeitsweise.

Sagen Sie Hallo!