Umbau Küche Sch.

Das Projekt

Ein Ehepaar, beide schon in Pension, wollte in einem Wohn- und Geschäftshaus in seiner Wohnung im 2. Obergeschoß die Küche zum Wohn-Essraum öffnen und Bad (Badewanne mit Türchen) und WC erneuern. Wir empfanden, dass der Wohnung über die Jahre der Zweisamkeit seiner persönlichen Vorlieben und Interessen eine angenehme Atmosphäre „angewohnt und eingeräumt“ wurde, die durch den Umbau nicht verloren gehen sollte und attraktivierten in diesem SInne behutsam die Beziehung zwischen Wohnen, Essen, Kochen und der bepflanzten Loggia, die, mit Glasschiebewänden verschlossen, auch als Wintergarten fungiert.

ObjektartWohnen OrtOttensheim Dimensionen40m2 StatusUmbau fertiggestellt FotografieJosef Pointner
2 Küche

Küche

3 Ansicht von Loggia

Ansicht von Loggia

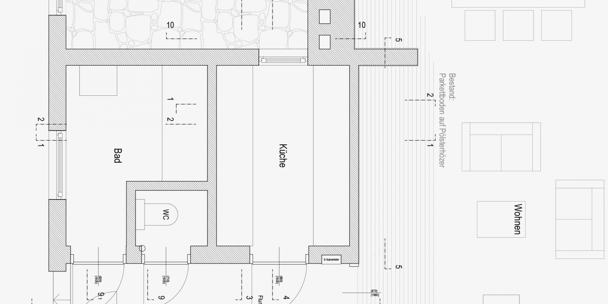
4 Grundriss Bestand

Grundriss Bestand

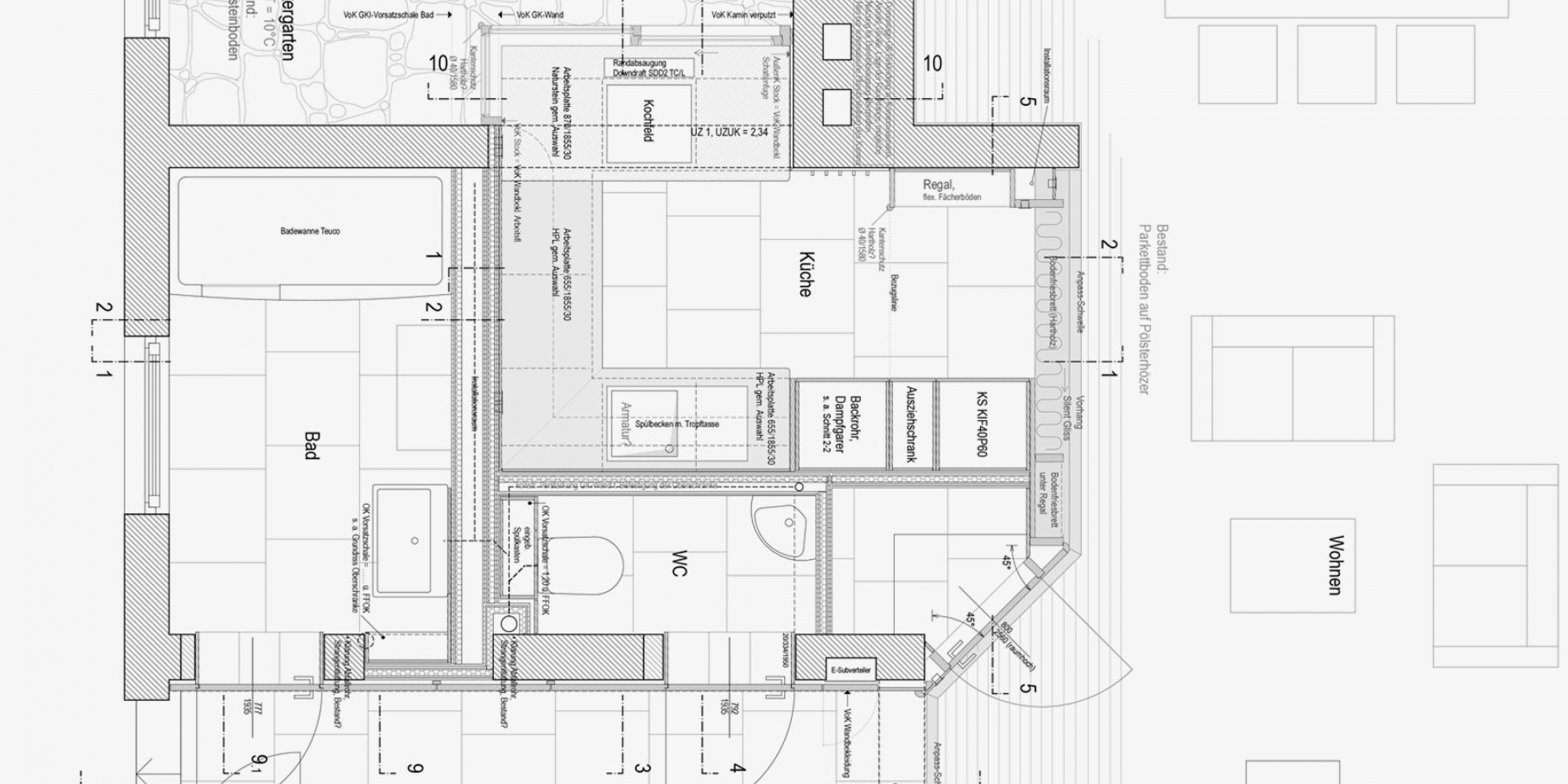
5 Grundriss Umbau

Grundriss Umbau

Vorheriges
Projekt
Nächstes
Projekt

Interessiert?

Wir hören gerne von Ihrer Projektidee oder erzählen bei einem persönlichen Gespräch mehr über uns und unsere Arbeitsweise.

Sagen Sie Hallo!